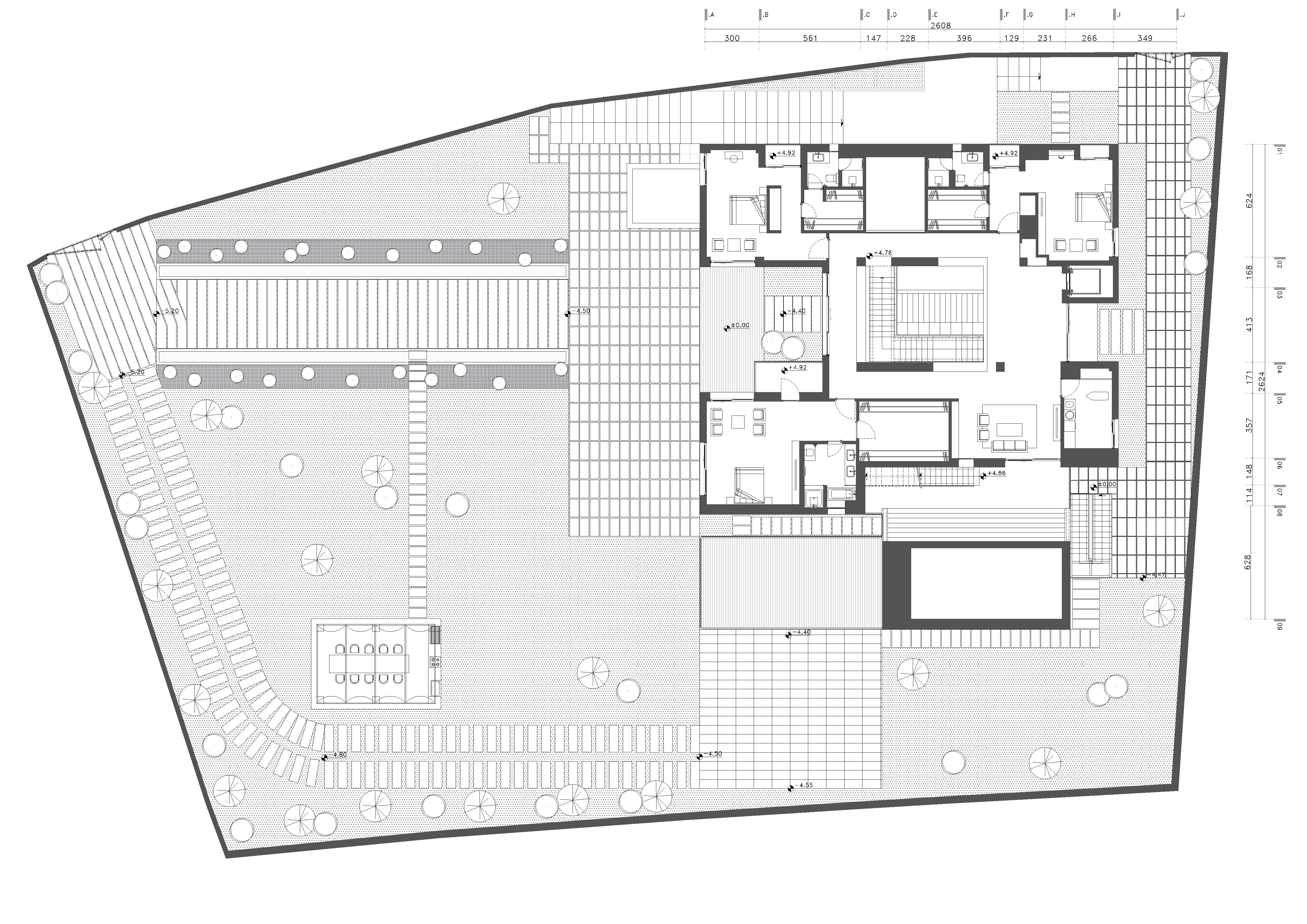
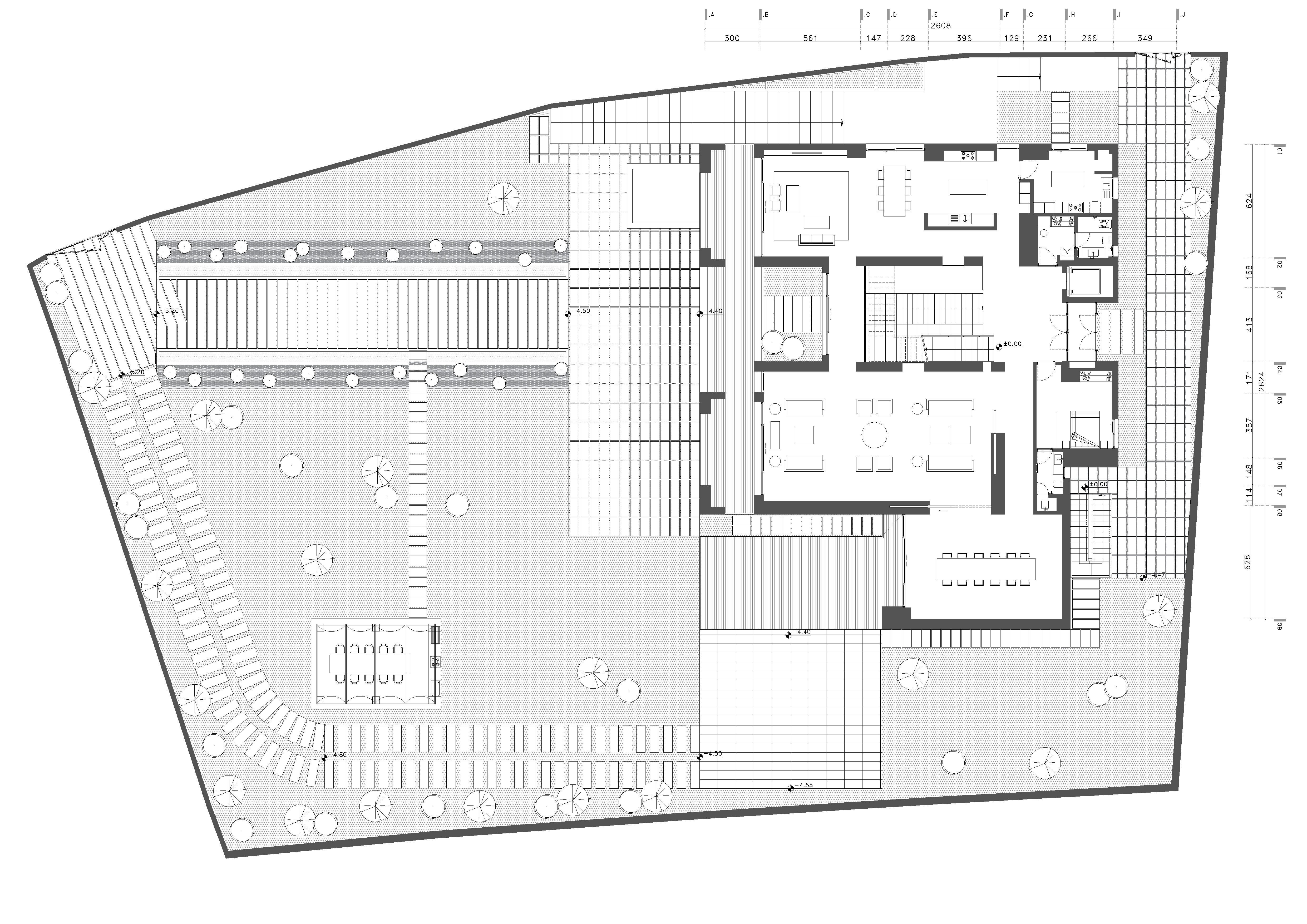
Lavasan Villa no.23
Location
Lavasan
Project Year
2017
Program
Villa
Area
1200 sq meter
Client
Private
Information
Lavasan
2017
Villa
1200 sq meter
Private