2 Office , 2 Brothers
Location
Tehran / Zaferanieh
Project year
2008
Program
Residential / Office
Area
100 Sq.meter
Client
Mr. Ahmad nabian , Mr. Abolghasem nabian
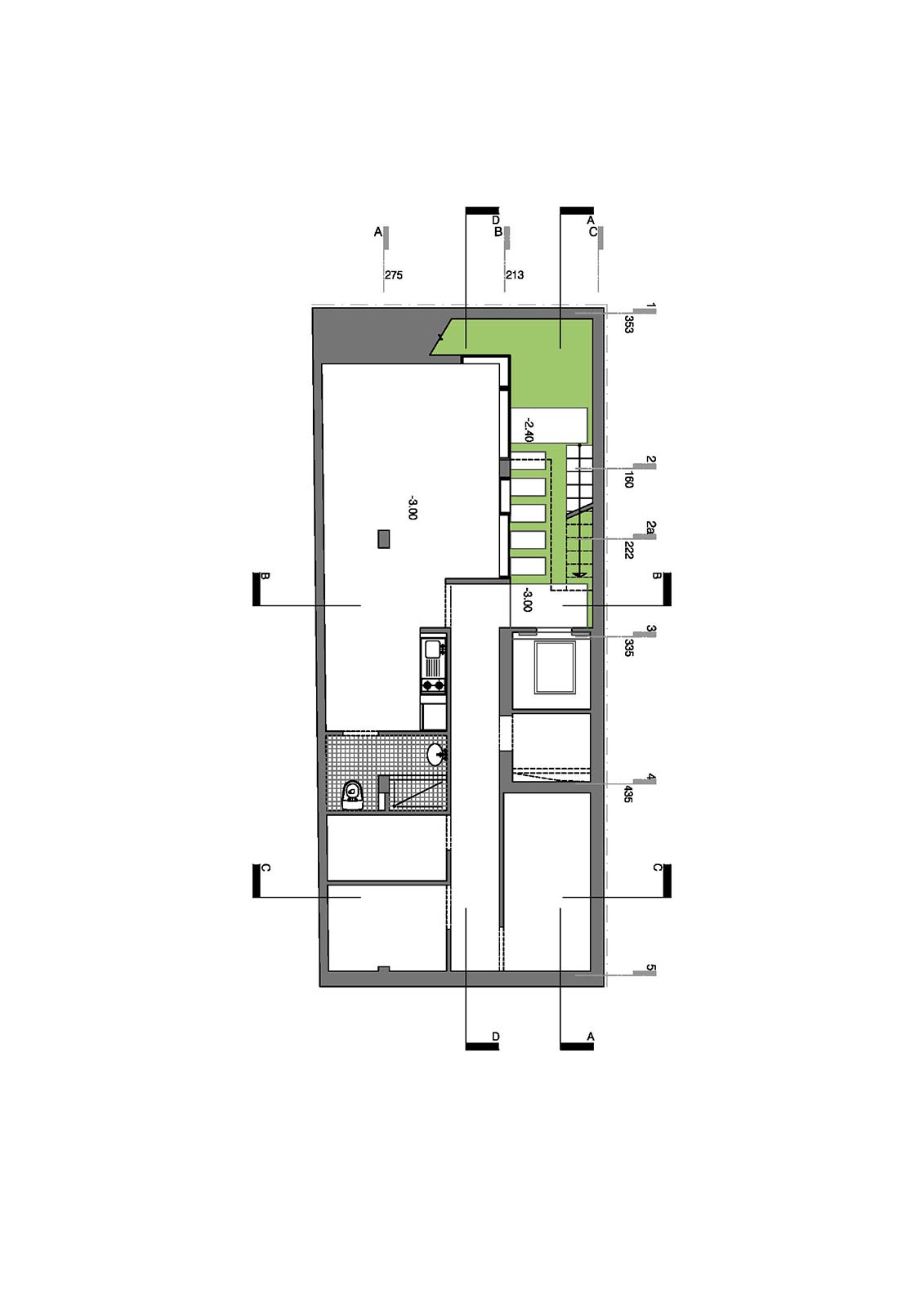
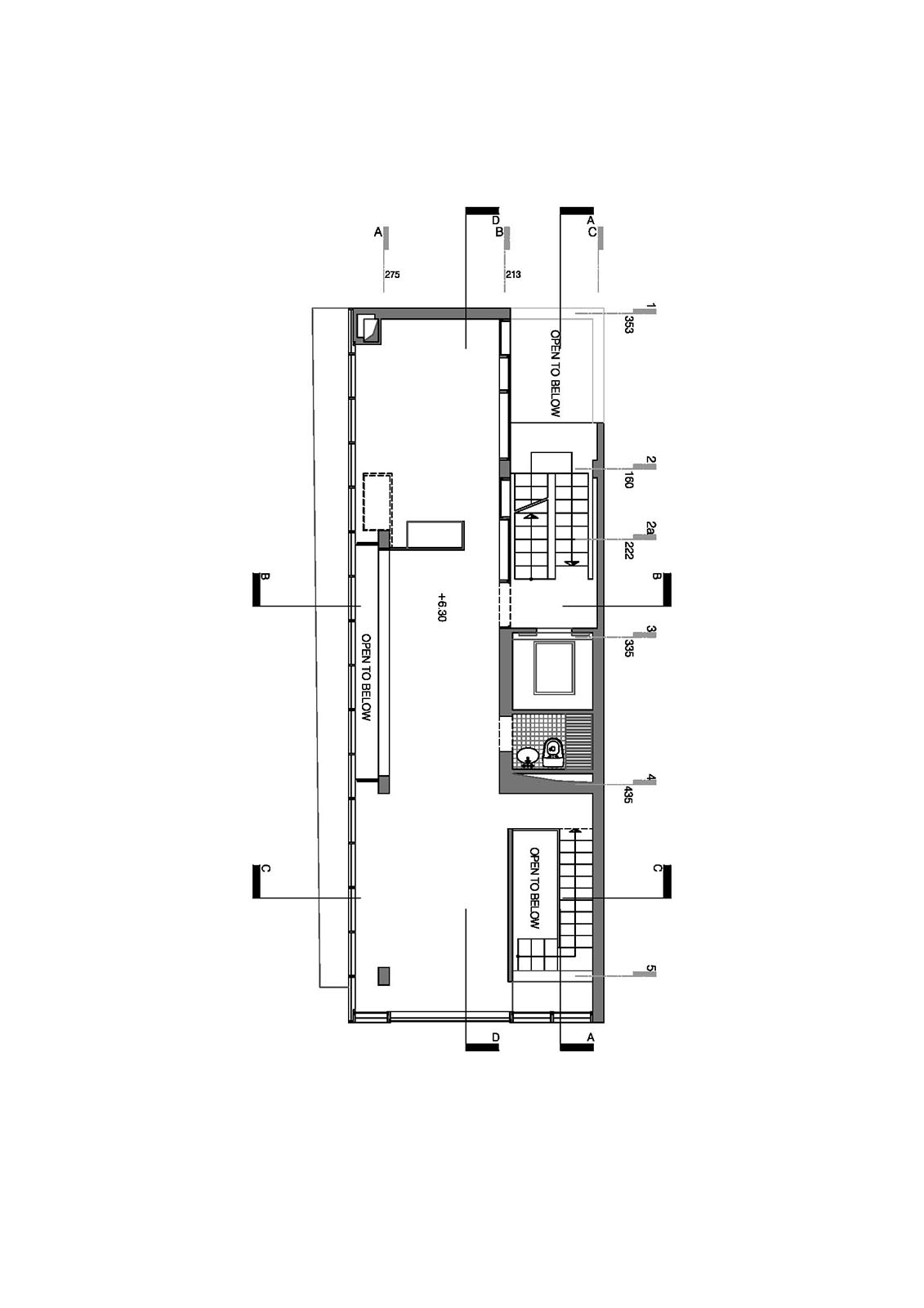
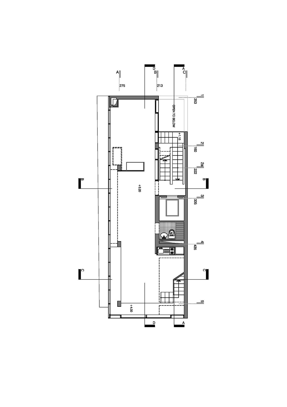
The clients were two brothers, a geologist and a civil engineer, who asked for two autonomous offices. The driving force in designing the interior was the Enterprise’s “Absolutely-no-Division” policy. Both brothers desired open-plan schemes for their workspaces, with zero or kinetic partitions. Due to the nature of his practice, the geologist asked for a unified, linear studio space, where over-sized blueprints of mine sites and their topographical features could be laid out on long working desks. The civil engineer also envisioned his work space as a single, undivided spatial pocket—a control room, as he called it—with large working desks populated by printouts of charts and tables documenting the up-to-date dynamics of the various construction sites that he would manage simultaneously.
What is more, the relatively minimal size of the parcel allowed for Extra Small as the scale of spatial intervention. The result was a multitude of petite milieus, each architecturally figured out and valued through the tectonic speculations inherent in erecting substantial exposed structures out of concrete. The challenge was to achieve a state of Smooth, meaning light, shadow, and the ambiguous in-between, using poured stone (concrete) and glass as the media chosen to deliver an affective experience.
The location was deep inside a residential island, an enclave of old, near-ruined, provincial-style homes in northern Tehran. Whatever that was to be erected to accommodate the Enterprise had to fit into this surrounding atmosphere of domesticity. Instead of standing out by introducing a spatio-visual aberration, the beast, the Enterprise, had to fit in by maintaining a caché status.
The skin, via which the non-domestic interior would interface with the domestic exterior, had to maintain a low-key profile while establishing itself as high art in the most subtle way. The spatial relationship of the informal domestic and the Enterprise had to be inverted. The domestic was outside, while the Enterprise was encapsulated, dissolving within the extended domesticity without being subdued by it. The Enterprise cherished the exteriorized domus of the street, and therefore was embraced by it.
The orientation of the erected mass in relation to the remaining void was the result of a fortunate mistake -provoked through manipulation of city regulations- a spatial Erratum of city officials in identifying the appropriate boundaries of the buildable envelope according to zoning bylaws (instead of covering the eastern 60% of the parcel, the officials delineated the buildable envelope as the northern 60% of the lot due to the absurd orientation of the parcel and how it was willfully exaggerated in the construction permit request documents).
The error was provoked, cherished and embraced. As a result, the absurd proportions of the elongated buildable envelope allowed for a linear, almost corridor-like interior to take shape, satisfying the requirements of the Enterprise. The byproduct of the error was a very special outcome: the interface between the interior Enterprise and the exterior En Scène was minimized, allowing it to fit in even better. The interior corridor of the Enterprise was extended indefinitely to the domesticity that was everywhere out there, in the terrain vague framed between the silhouettes of the coupled-up apartment buildings facing each other via back-to-back yards. The two brothers would stand at the end of the interior enterprise, looking through the infinite green opening of tens of back-to-back yards vanishing into the far-away horizon, meeting the ambiguity of the mountain whose profile was blurred by distance.