Eilkhaneh
Location
Tehran / Zaferanieh
Project Year
2012
Program
Residential Apartment
Area
-
Client
Mr. Rambod Eilkhani, Mr. Ahmad Nabian, Mr. Abolghasem Nabian
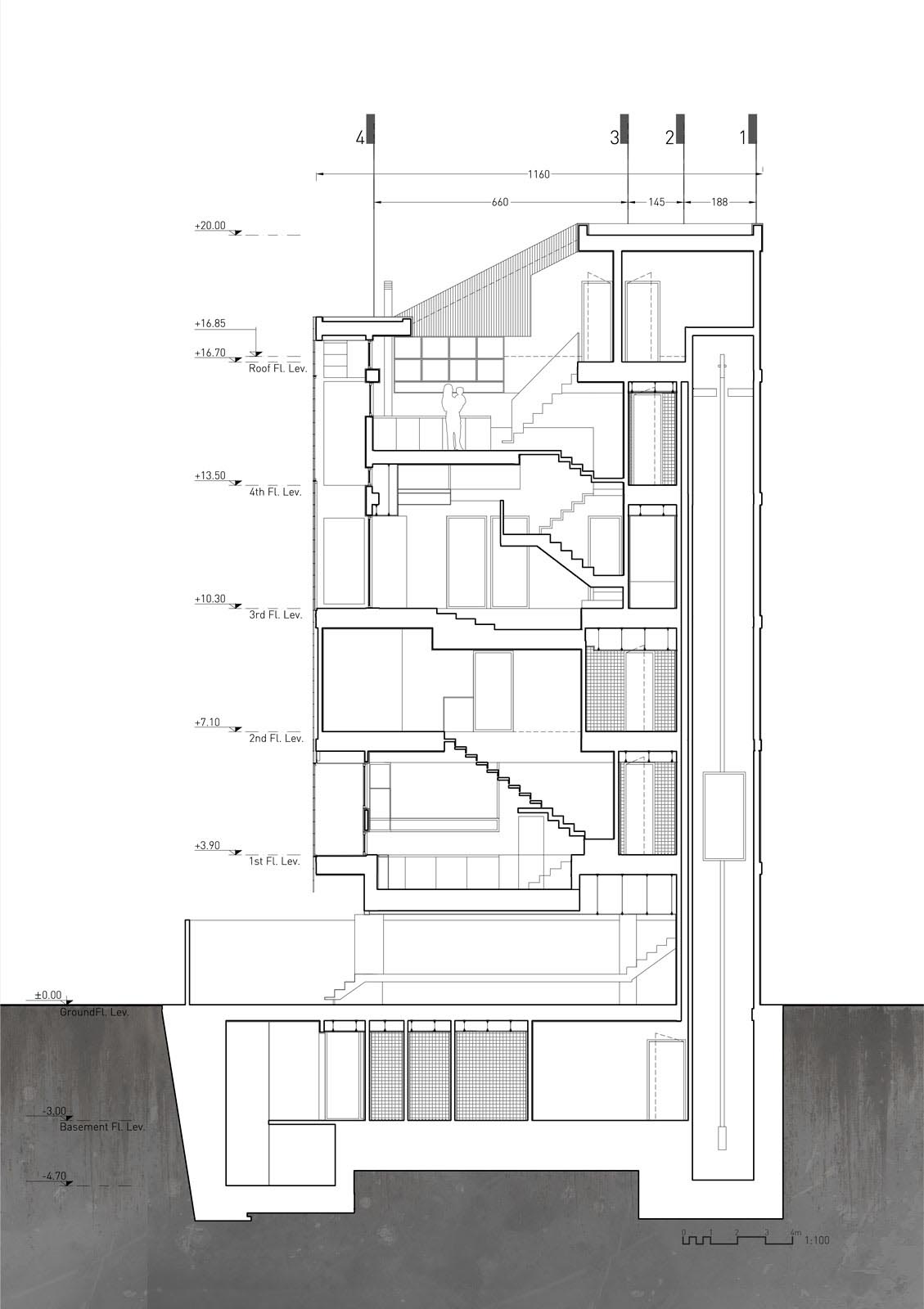
Tribe House is our try in re-evaluating the lost values of Iranian domestic space. During the twentieth century, Iranians were rapidly modernized without actually understanding or going through the essential steps of modernity. Certain paradigms of domestic life was lost in this transition. In the capital, the city of Tehran, the city was rebuilt substantially in the span of a century. The two-story homes were substituted with four to five-story apartment buildings and urban life style was modified accordingly.
Certain traditions in conception and erection of domestic space was lost in this process, including the connection of the house with the garden, and the intrinsic complexity of interior spaces that was the product of well-crafted sectional and planar connections.
Tribe House examines the possibility of designing for real homes within the framework of erecting an infill apartment.