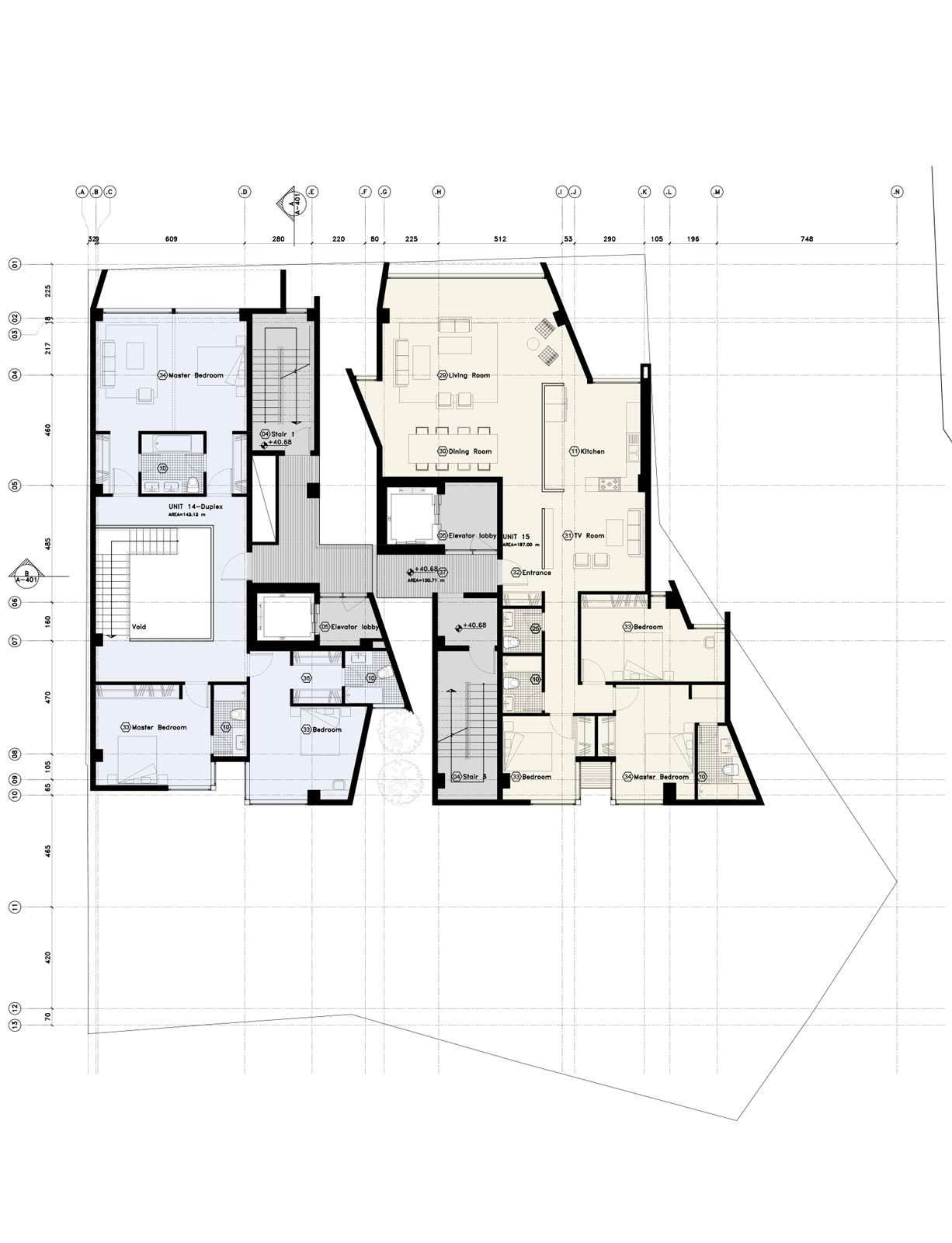
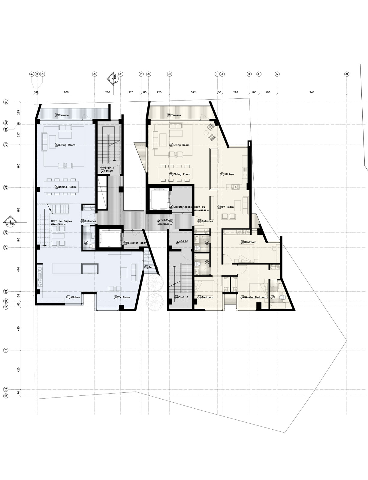
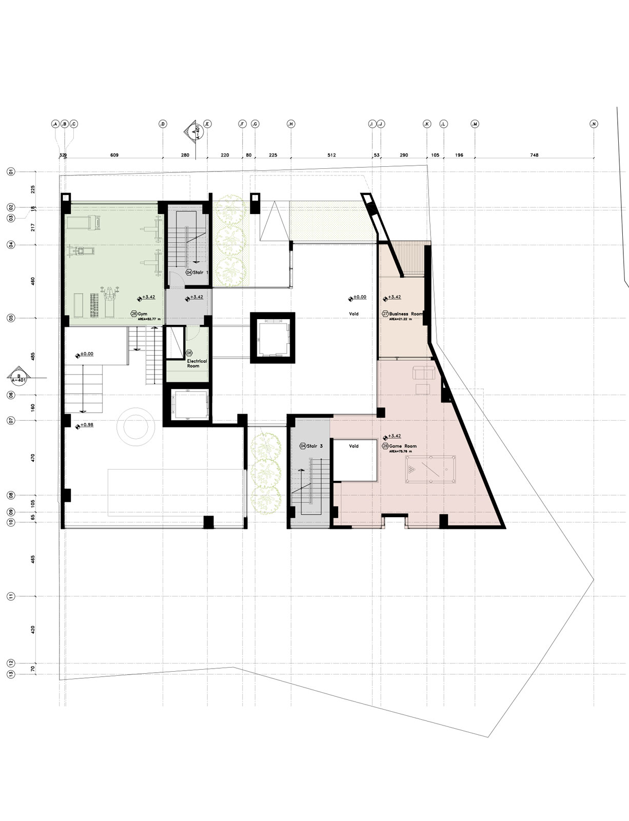
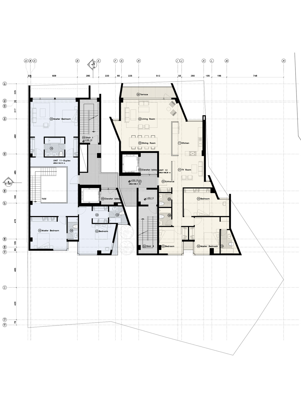
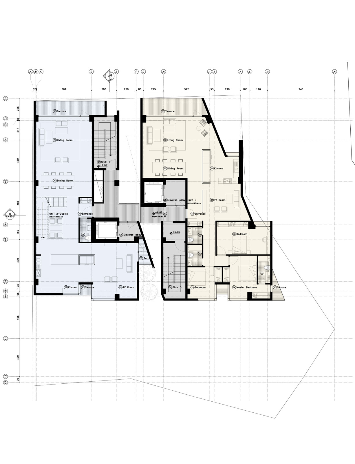
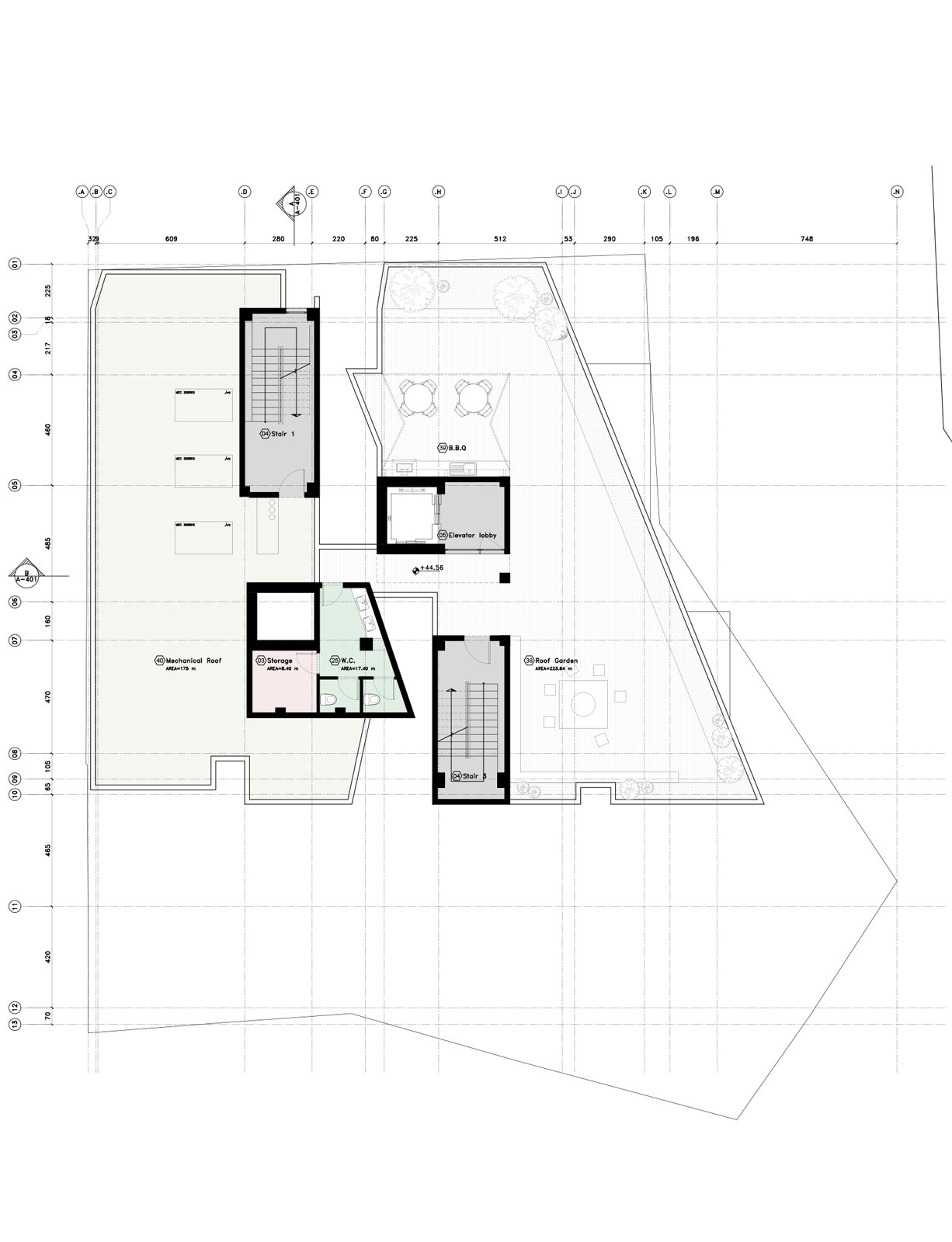
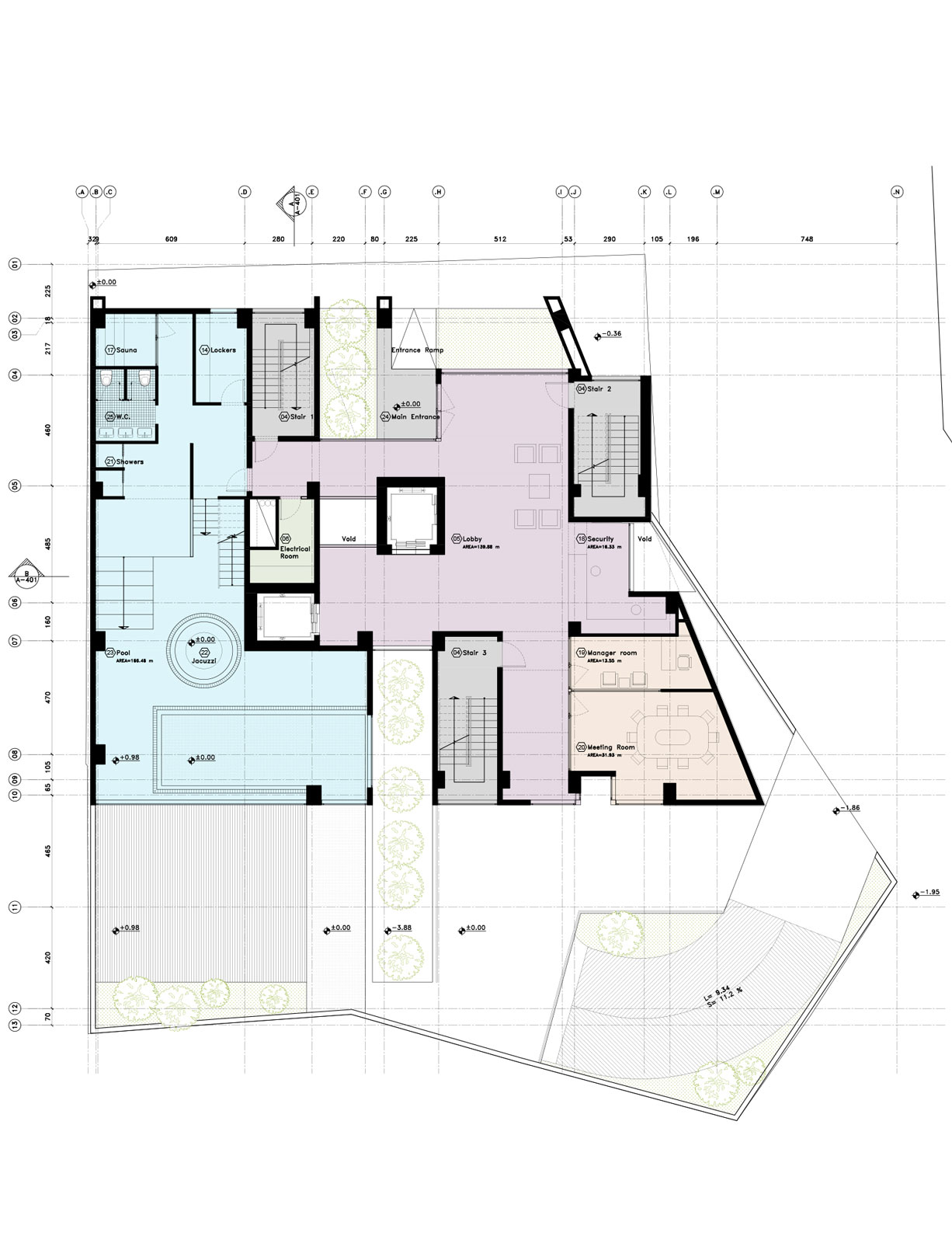
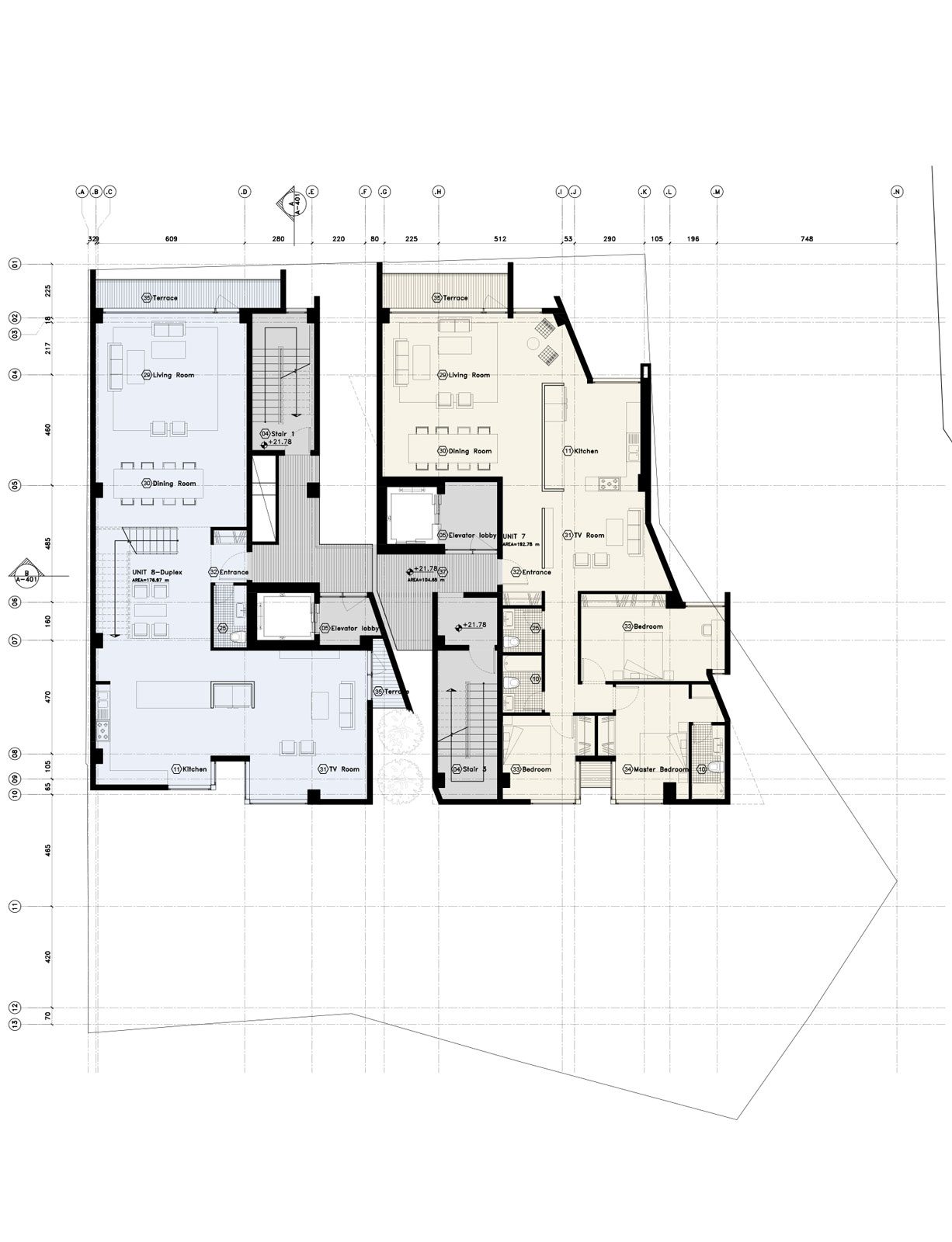
Naaz Residential Complex
In collaboration with
NEXT Office
Location
Tehran / Pasdaran St
Project year
2017
Program
Residential
Area
8500 Sq.meter
Client
Mr. Babaei
Coming soon…
Information
NEXT Office
Tehran / Pasdaran St
2017
Residential
8500 Sq.meter
Mr. Babaei
Coming soon…