Shali Shop
Location
Mazandaran / Amol
Project year
2005
Program
Shop
Area
-
Client
-
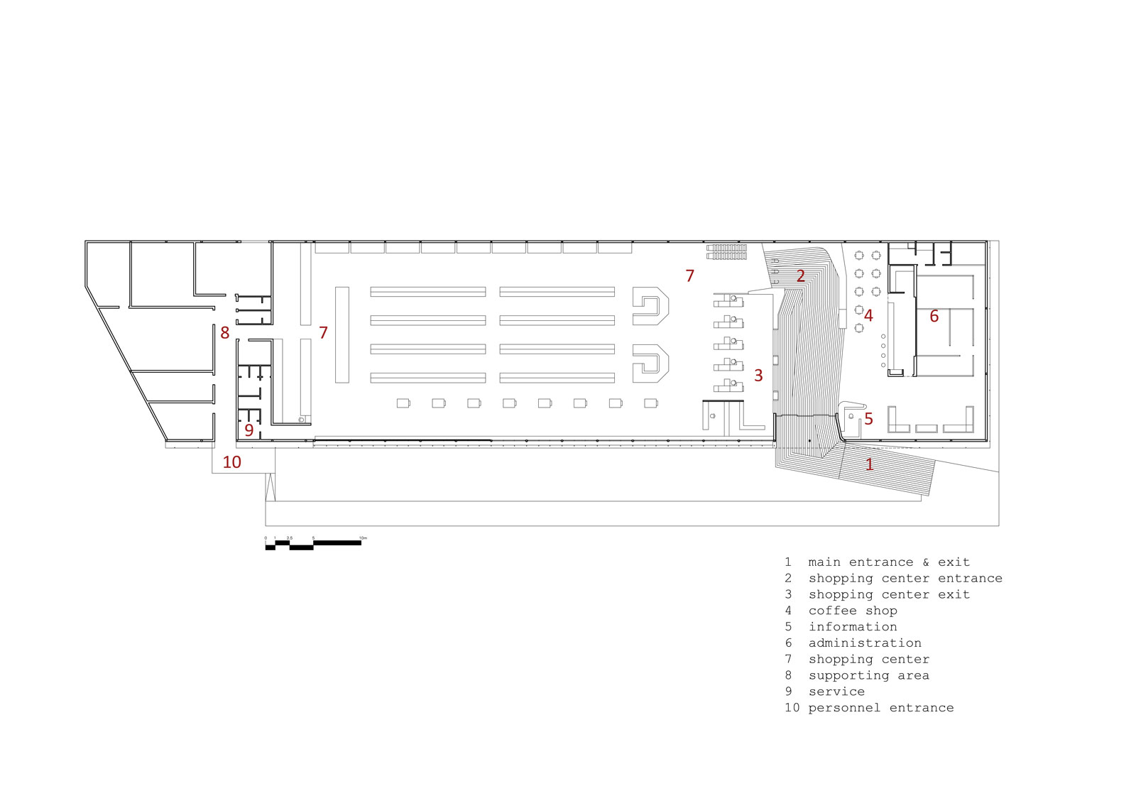
In this project of conversion of an old workshop to a shopping center, the design concept is about wrapping. The bright colored material wraps around the old building without negating its basic formal and structural characteristics. The facade is like an elegant night gown, showing off the exotic curvature of the body, hidden behind it. A sexy tailor-cut dress, though, not too tight that leaves some to the imagination of the observer. One feels the burning urge to tear the whole thing apart just to find out what is beneath this flashy cover. The wrap tears apart at points to let the openings and cut-through take shape. Yet, the design is not just about introducing a colorful, eye catching project, which differs the existing fabric with its architectural form to attract the prospective customers. It is the start of an architectural movement at a regional scale. From the designers’ point of view, it is a design statement, which hopefully, will set the guidelines for renovation and conversion of the aging commercial fabric in the adjacent properties. This is about introducing new design culture for the forth-coming revitalization projects of the region, which can be implemented as a prototype for any commercial strip along the arterial roads, passing by or through marginal small cities in the area north of Iran which serves as a national resort and tourist attraction. It is about finding ways to actualize architectural concepts despite the limitations that are imposed because of the financial constraints and technical and technological deficiencies. Financial and technical feasibility were two major concerns trough out both schematic and construction phase. One aspects of the project that is worth pointing out is the fact that the construction teams, involved in the site work were not professional well-trained technicians and as a result communicating the design concepts and construction details with the working teams was an ever lasting challenge for the design team.