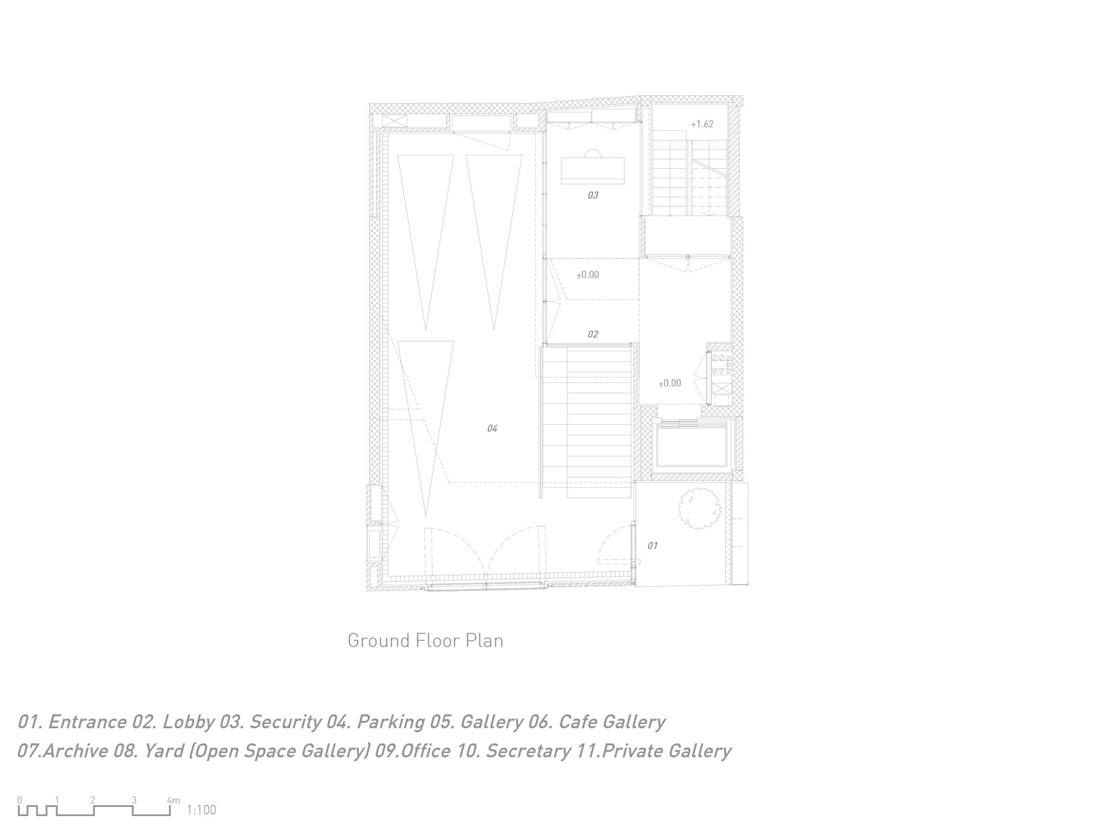
White gallery
Location
Tehran / Mahmoodieh
Project year
2017
Program
Private gallery
Area
800 Sq.meter
Client
Mr. Akhavi
The White Gallery is an architectural exercise in realigning the potentials and limitations of «in-fill» typology when it comes to creating a performative space for exhibition of art work.
The explicit and deliberate difference, in both figuration and configuration of the interior and exterior of the project, highlights the challenges to be faced in juxtaposition of the duo of typology and program.
The project is simultaneously extroverted and introverted:
From within, the space is organized around the core idea of maximized sectional continuity. The continuum reaches outward while being maintained inside. Spacio-sectional porosity allows for layering of the perspectival views it offers the spectator.
From the outside and at first glance, the project is conceived and meant to be perceived as an autonomous and solid object and a composition of abstracted Euclidean forms with an utmost level of opacity. This is in line with the dense morphology of the surrounding residential context.
Just like a «Cabinet de curiosités» the historic predecessor of museums and galleries, the White Gallery appears as a puzzling representational space, not to be decoded unless one enters its space of representation.